Home
Bungalow Modellen
K-16
K-20
K-21
K-23
K-24
Model 2
Model 5
Model 6
Startersmodellen
Budget Model
K-22
K-26
K-27
K-28
K-29
LK-16
LK-17
WB K-23
Percelen
About
Contact
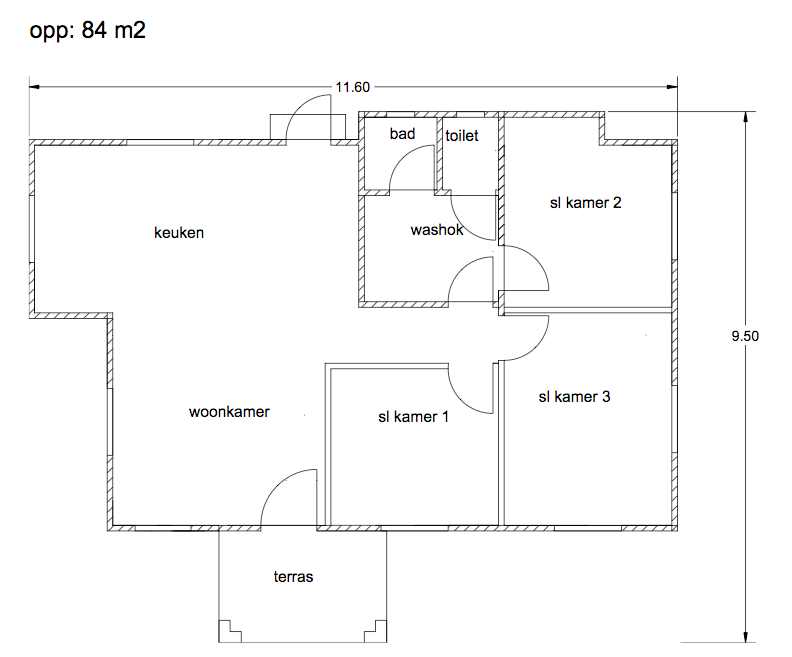
model lk-16
Indeling:
3 Slaapkamers
Washok
Bad
Toilet
Hal
Keuken
Woonkamer
Terras
Voorzieningen:
110v electra
Koudwater voorzieningen
Oppervlakte:
Woonhuis: 84 m²
Prijs Exclusief Perceel: € 35000
Interesse in dit model? Contact ons
Name*
Mobiel Nummer *
Email Address*
Message*
Thank you! Your submission has been received!
Oops! Something went wrong while submitting the form.
© Copyright - Nashville Vastgoed